
Flächenmanagement bedeutet, den verfügbaren Raum gezielt zu planen und zu nutzen. Dabei soll die Nutzung der Flächen kontinuierlich optimiert werden, immer mit Blick auf Wirtschaftlichkeit, Umweltverträglichkeit und Anforderungen der Nutzer. Im Zentrum steht die Aufgabe, Flächenressourcen so einzusetzen, dass sie langfristig Mehrwert schaffen und zur Erreichung Ihrer Nachhaltigkeitsziele beitragen. Grafisches Flächenmanagement kombiniert die Analyse der Daten mit einer 2D oder 3D Fachansicht und schafft so eine intuitivere Übersicht aller Optimierungsmöglichkeiten.
Mit BIM@FM bringen Sie Struktur in Ihre Flächendaten und schaffen die Basis für fundierte Entscheidungen. Egal ob Liegenschaft, Industrieanlage oder Gewerbeimmobilie, wir bieten Ihnen ein auf Ihre Bedürfnisse zugeschnittenes Analysetool. Unsere Lösung verknüpft technische, kaufmännische und organisatorische Informationen und macht diese in interaktiven Fachansichten, Modellen und Dashboards transparent.
Ob Belegungsmanagement, Kostenstellenanalyse, Reinigungsplanung oder flexible Arbeitsplatzkonzepte wie Smart Office oder Home Zones, mit BIM@FM steuern Sie alle relevanten Prozesse effizient. Analysefunktionen helfen dabei, ungenutzte Potenziale zu erkennen und Ihre Flächen im Sinne von Wirtschaftlichkeit und Nachhaltigkeit weiter zu optimieren.
Ihre IFC- oder DWG-Pläne haben wir bereits integriert, die Grundlage für eine datenbasierte Flächenbewirtschaftung ist geschaffen. Automatisiert erfassen wir Flächenmaße, Bodenbeläge, Kostenstellen, Vermietungsstatus und weitere Schlüsseldaten.
Auf dieser Basis ermöglichen wir z. B. das Erstellen von Reinigungsplänen, die sich flexibel an Bodenbelag, Raumart und gewünschte Frequenzen anpassen. Moderne Modellansichten und Filterfunktionen (z. B. für Leerstand oder Kostengruppen) sorgen dafür, dass Sie jederzeit den Überblick behalten. Auch variable Arbeitsplatzmodelle lassen sich nahtlos abbilden und steuern.

BIM@FM bietet Ihnen ein umfassendes Werkzeugset für ein ganzheitliches Flächenmanagement, von der operativen Umsetzung bis zur strategischen Planung. Zu den zentralen Funktionen gehören:
Die automatisierte Flächenerfassung ermöglicht eine präzise Auswertung von IFC- und DWG-Dateien mit genauer Zuordnung von Flächen und den zugehörigen Stammdaten wie z.B. Nutzungen, Kostenstellen oder Bodenbelägen. Dadurch wird der manuelle Aufwand reduziert und eine fehlerfreie Datenbasis für die weitere Bearbeitung geschaffen. Dabei können sowohl einzelne Gewerbeimmobilien als auch Liegenschaften oder Industriekomplexe problemlos verarbeitet werden.
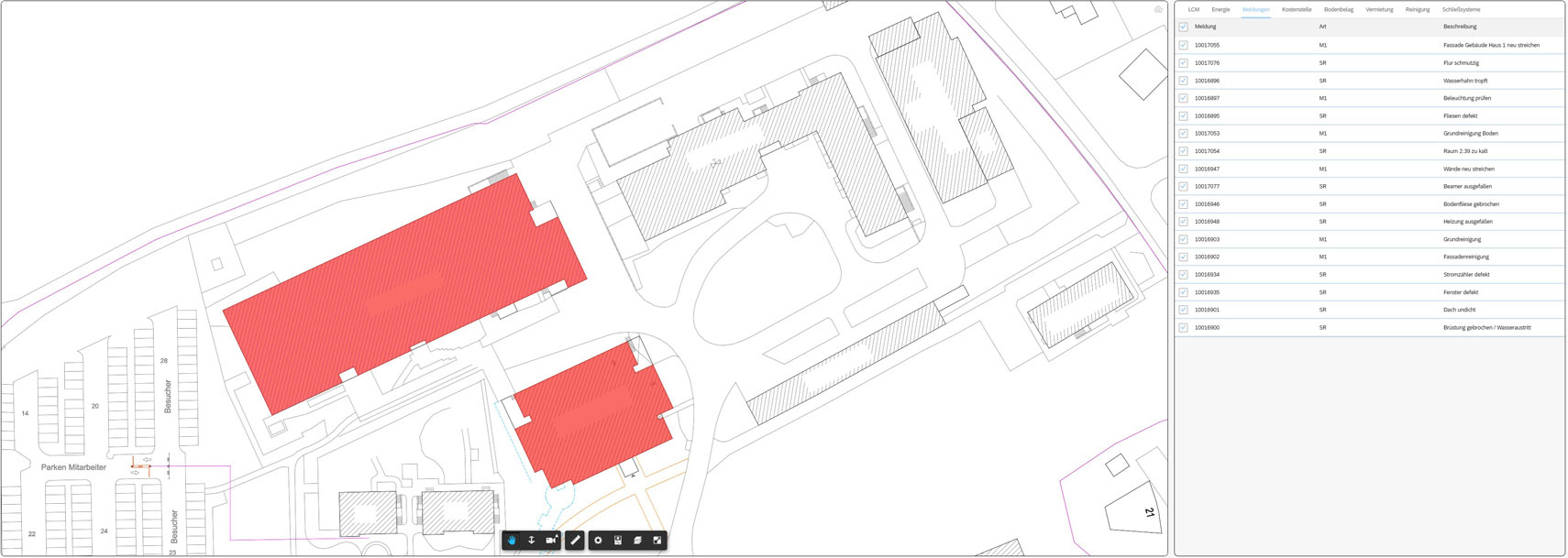
Interaktive Modellansichten und vielseitige Filterfunktionen erleichtern die Navigation, Analyse und Auswertung von Gebäude- und Grundflächen, zum Beispiel nach Energieverbrauch, Technischer Ausstattung oder Kostengruppe. Die durch BIM@FM bereitgestellte Fachansicht beinhaltet zudem Funktionen wie 1st Person View, Modellschnitte oder integrierte Messwerkzeuge. Diese unterstützen eine detaillierte Betrachtung und Prüfung der Gebäudedaten und erleichtern unter anderem Analysen für Renovierungen sowie die exakte Bestimmung von Maßen Technischer Anlagen.
Individuelle Reinigungs- und Bewirtschaftungspläne lassen sich flexibel an Raumtyp, Ausstattung und gewünschte Reinigungszyklen anpassen. So können betriebliche Abläufe optimiert und spezifische Anforderungen effizient umgesetzt werden. Die auszuführenden Aufgaben können auch als Meldung direkt in SAP angelegt werden, um so die Übersicht über bereits abgearbeitete Aufträge zu erhöhen.
Moderne Nutzungskonzepte wie Smart Office, Home Zones oder flexible Desk-Sharing-Modelle lassen sich nahtlos in die Flächenplanung und
-bewirtschaftung integrieren. Durch übersichtliche Darstellung von beispielweise Auslastung von Büro-Arbeitsplätzen kombiniert mit flächenbezogenen Kostenstellen können fundierte Entscheidungen über das Flächenpotenzial getroffen werden. Damit wird eine zukunftsorientierte und bedarfsgerechte Nutzung der Arbeitsumgebung unterstützt.
Dashboards und Reports liefern alle relevanten Kennzahlen und Potenziale übersichtlich aufbereitet. So behalten Sie Kosten, Flächenoptimierung und die Erreichung von Nachhaltigkeitszielen stets im Blick und können fundierte Entscheidungen treffen.
Mit BIM@FM schaffen Sie die Grundlage für eine transparente, effiziente und zukunftsorientierte Flächenbewirtschaftung – abgestimmt auf Ihre individuellen Anforderungen.

Facility Management mit SAP. Das bedeutet: Maßgeschneiderte und zukunftsfähige Lösungen für alle Branchen, unterschiedliche Bedarfe und jeden Bereich der Immobilienwirtschaft. Entdecken Sie jetzt das ganze Leistungsspektrum von BEGIS.
Daten
Management